

气动角式调节阀产品的详细资料:产品型号:zjhj产品名称:气动角式调节阀产品特点:zjhj精小型气动薄膜调节角阀单座阀采用顶部导向结构,配用多弹簧执行机构。具有结构紧凑、重量轻、动作灵敏、流体通道呈s流线型、压力损失小、阀容量大、流量特性精确、拆装方便等优点。广泛应用于精确控制气体、液体等介质的工艺参数如压力、流量温度、液位保持在给定值。特别适用于允许泄漏量小,阀前后压差不大的高粘度,含有悬浮物和颗粒状物质流体的调节,可避免结焦、堵塞、便于自净与清洗的场合。气动角式调节阀阀体:☆形 式:角形单座铸造阀
气动角式调节阀上阀盖:常温型:-20~+200℃| 公称通径dn | 20 | 25 | 32 | 40 | 50 | 65 | 80 | 100 | 125 | 150 | 200 | 250 | 300 |
| 阀座直径dn(mm) | 20 | 25 | 32 | 40 | 50 | 65 | 80 | 100 | 125 | 150 | 200 | 250 | 300 |
| 额定流量系数kv | 6.5 | 10 | 16 | 25 | 40 | 63 | 100 | 160 | 250 | 400 | 630 | ||
| 行程mm | 10 | 16 | 25 | 40 | 60 | 100 | |||||||

| 阀体材料 | 公称压力mpa | 介质工作温度℃ | |||||||||||||
| 〈 | 〈 | 〈 | 〈 | 〈 | 〈 | 〈 | 〈 | 〈 | 〈 | 〈 | 〈 | 〈 | 〈 | ||
| 120 | 200 | 250 | 300 | 350 | 400 | 425 | 450 | 475 | 500 | 525 | 550 | 575 | 600 | ||
| 最大工作压力mpa | |||||||||||||||
| 铸铁ht200 | 1.6 | 1.6 | 1.5 | ||||||||||||
| 铸钢zg25 | 4.0 6.4 |
4.0 6.4 |
3.7 5.9 |
3.3 5.2 |
3.0 4.7 |
2.8 4.1 |
2.3 3.7 |
1.8 2.9 |
|||||||
| 铸不锈钢zg1cr18ni9ti | 4.0 6.4 |
4.0 6.4 |
3.0 4.4 |
2.7 4.2 |
2.4 4.0 |
2.1 3.8 |
1.9 3.5 |
1.7 3.4 |
1.4 3.2 |
1.1 2.9 |
0.8 2.6 |
||||
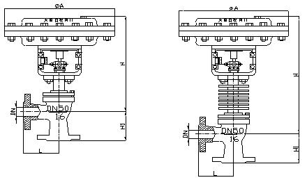
| 公称通径dn(mm) | l(mm) | h1( mm) | h(mm) | øa | |
| 1.6(mpa) | 常温 | 中温 | |||
| 20 | 100 | 100 | 349 | 444 | 285 |
| 25 | 115 | 115 | 350 | 445 | 285 |
| 32 | 130 | 130 | 358 | 458 | 285 |
| 40 | 130 | 130 | 378 | 478 | 285 |
| 50 | 150 | 150 | 393 | 493 | 285 |
| 65 | 170 | 170 | 494 | 594 | 360 |
| 80 | 190 | 190 | 503 | 628 | 360 |
| 100 | 215 | 215 | 521 | 646 | 360 |
| 125 | 250 | 250 | 634 | 759 | 360 |
| 150 | 275 | 275 | 696 | 846 | 470 |
| 200 | 325 | 325 | 715 | 915 | 470 |
| z | j | h | j | 16 | c | g | k |
| 自控阀门 | 执行机构: | 多弹簧气动薄膜执行机构 | 阀门结构类型: | 公称压力: | 阀体材质: | 温度类型: | 作用型式: |
| j:表示精小型 | f:表示分流阀 | 16:表示1.6mpa | c:表示碳钢 | g:中温型常温省略 | k:表示气开型 | ||
| h:表示合流阀 | 25:表示2.5mpa | p:表示不锈钢 | b:表示气关型 | ||||
| j: 表示角形阀 | 40:表示4.0mpa | f46:表示阀体衬氟 | |||||
| 64:表示6.4mpa |
